квартира в новостройке 55,80 м2 по ул. Россия Москва за 15590539 руб.

Адрес
Адрес Россия, Москва
Описание
Цена 15 590 539 р. (279 400 р./м2)
Подать заявку на ипотеку
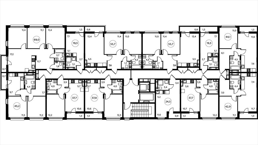
Этаж 7
Этажность дома 15
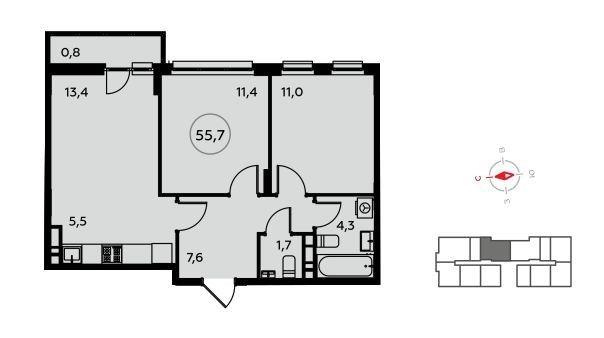
Общая S, м2 55,80
Жилая S, м2 0,00
S кухни, м2 0,00
Продаётся 3-комнатная квартира, площадью 55,8 кв. м на 7-м этаже дома комфорт-класса в ЖК "Белые ночи". Квартира с функциональной планировкой: большие окна, высота потолка 2,99 м. Без отделки. Есть варианты квартир с дизайнерской отделкой и с предчистовой отделкой white box в других корпусах ЖК. Компактный ЖК "Белые ночи" из восьми монолитных корпусов расположен в юго-западной части Москвы (НАО), рядом с живописным Бутовским лесопарком (1610 га). В благоустройстве дворов и уютного сквера используются характерные для российского севера растения, натуральные материалы, качественное игровое и спортивное оборудование.> Открыт образовательный комплекс "Формула": школа на 550 учеников и детский сад на 150 малышей. На первых этажах домов расположены магазины, аптеки, детские центры, бытовые и сервисные объекты. Есть стадион, велодорожки, места для отдыха, прогулочные зоны и лыжные трассы на территории лесопарка. Ст. метро "Новомосковская" (2023 г.) – 400 м, ст. метро "Коммунарка" – 2,4 км, ст. метро "Улица Горчакова" – 2,4 км, СБВ – 3 км, Калужское шоссе – 4 км, МКАД – 6 км. - Купи и копи! Ипотека от 1 рубля в месяц – до ввода дома в эксплуатацию! - Не решаетесь брать ипотеку на квартиру, потому что арендуете жильё? Берите квартиру в ГК "А101" и снимайте на бонусы от покупки! Подробности на сайте застройщика - Программа "А101Бонус". - Квартиры с сертификатами на мебель и технику! Звоните, мы вам все подробно расскажем! - Ипотека на машино-места в ЖК от ГК"А101"! Не арендуй место для машины, а плати за своё! Артикул по базе застройщика: 18К-3.2-726 id: 7217
Квартира в новостройке в Санкт-Петербурге
Дата 04.10.2024 21:43:28
Объявление № 19464590
Дата подачи:
5 октября 2024 г. 1:43
Дата обновления:
5 октября 2024 г. 1:43
Просмотров 36 Хотите продать быстрее?

Продавец
Агентство недвижимости:
Андреева Ирина Сергеевна
email: 89225397055avega@gmail.co m
Показать номер телефона
Пожаловаться
Комментарии:
Добавить